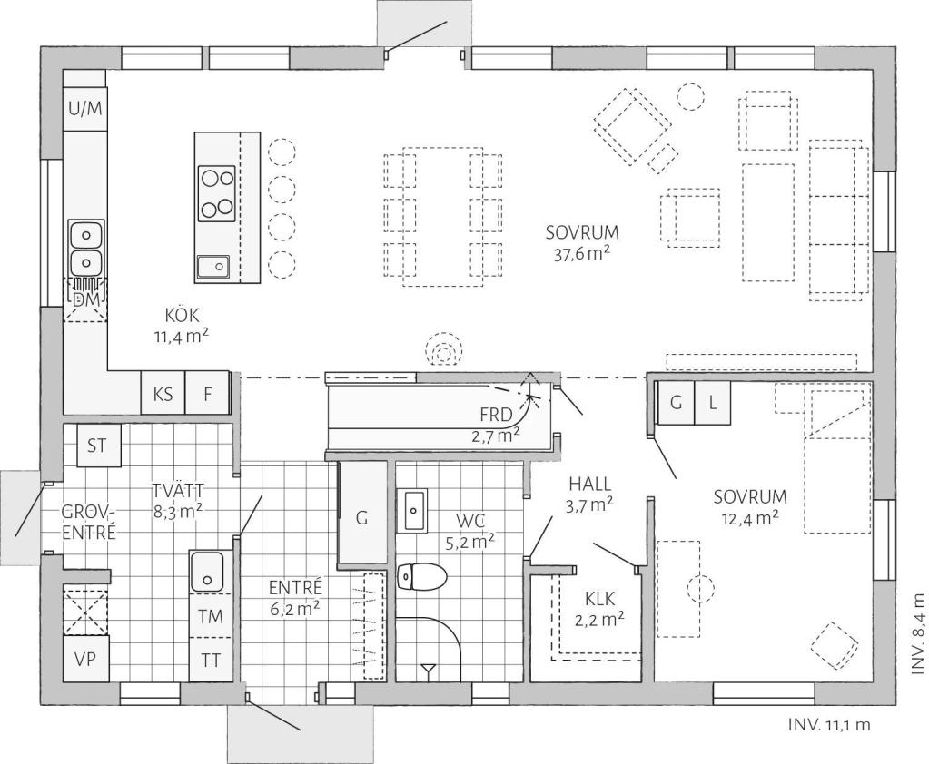
Mit klaren Linien und einem eleganten Äußeren verfügt der Prio 165 Modern über eine Designsprache, die die meisten Menschen anspricht. Im 1,5-stöckigen Haus Prio 165 gibt es viel Licht und Platz. Vom offenen Grundriss zwischen Küche und Wohnzimmer bis hin zu den 3 großzügigen Schlafzimmern im Obergeschoss. Für noch mehr Lichteinfall in Küche und Wohnzimmer wählen Sie bodenhohe Fenster und Türen nach hinten.
Mit minimalistischen Details erinnert der Prio 165 Industrial an luftige Scheunen und Künstlerateliers. Im 1,5-stöckigen Haus Prio 165 gibt es viel Licht und Platz. Vom offenen Grundriss zwischen Küche und Wohnzimmer bis hin zu den 3 großzügigen Schlafzimmern im Obergeschoss. Für noch mehr Lichteinfall in Küche und Wohnzimmer wählen Sie bodenhohe Fenster und Türen nach hinten.
Mit Balken, weißen Knoten und einem schönen Eingang, der die Vorderseite ziert, spiegelt der Prio 165 Traditionell Sicherheit und schwedisches architektonisches Erbe wider. Im 1,5-stöckigen Haus Prio 165 gibt es viel Licht und Platz. Vom offenen Grundriss zwischen Küche und Wohnzimmer bis hin zu den 3 großzügigen Schlafzimmern im Obergeschoss. Für noch mehr Lichteinfall in Küche und Wohnzimmer wählen Sie bodenhohe Fenster und Türen nach hinten.
(C) 2023 ZUHAUS Schwedenbau GmbH Impressum / Datenschutz

 
 
 
 
 
 
 
 
 
 
 
 
 
 
 
 
 
