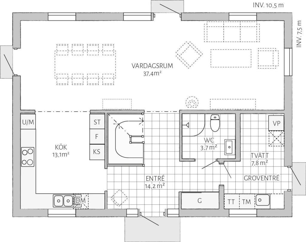
Ein stilvolles Äußeres verleiht dem Prio 158 Modern einen eleganten und einladenden Ausdruck, der in allen Umgebungen funktioniert. Prio 158 ist ein großzügiges zweistöckiges Haus, das für die soziale Familie konzipiert ist, die viel Platz möchte. Die zentral angeordnete Treppe schafft ein zusätzliches Gefühl von Raum und Volumen. Im Obergeschoss gibt es Platz für vier Schlafzimmer und zwei große Kleiderschränke mit viel Platz.
Mit minimalistischen Details erinnert der Prio 158 Industrial an luftige Scheunen und Künstlerateliers. Prio 158 ist ein großzügiges zweistöckiges Haus, das für die soziale Familie konzipiert ist, die viel Platz möchte. Die zentral angeordnete Treppe schafft ein zusätzliches Gefühl von Raum und Volumen. Im Obergeschoss gibt es Platz für vier Schlafzimmer und zwei große Kleiderschränke mit viel Platz.
Mit weißen Ästen und einer wunderschönen Veranda als krönenden Abschluss spiegelt der Prio 158 Traditionell Sicherheit und schwedisches architektonisches Erbe wider. Prio 158 ist ein großzügiges zweistöckiges Haus, das für die soziale Familie konzipiert ist, die viel Platz möchte. Die zentral angeordnete Treppe schafft ein zusätzliches Gefühl von Raum und Volumen. Im Obergeschoss gibt es Platz für vier Schlafzimmer und zwei große Kleiderschränke mit viel Platz.
(C) 2023 ZUHAUS Schwedenbau GmbH Impressum / Datenschutz
