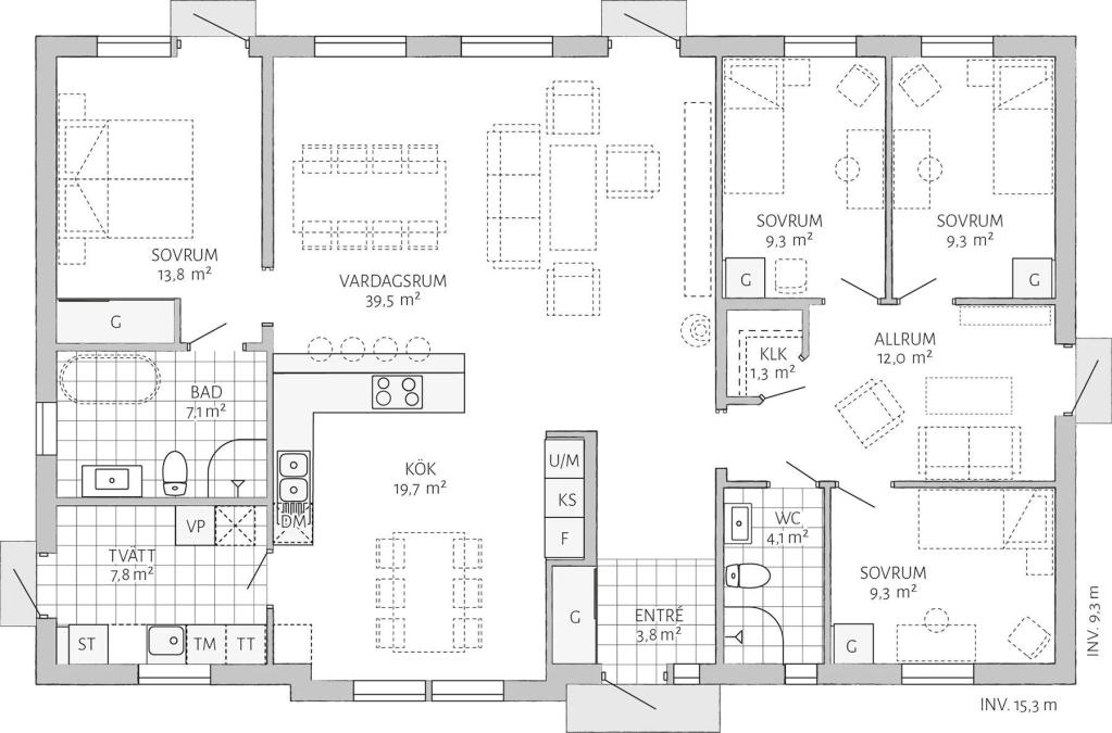
Eine reduzierte und elegante Fassade macht Prio 143 Modern zu einem unserer beliebtesten Häuser. Prio 143 ist nicht ohne Grund unser meistverkauftes Haus. Hier wird jeder Quadratmeter sonnvoll genutzt, der sowohl für große als auch für kleine Familien mit Kindern geeignet ist. Die 4 Schlafzimmer des Hauses sind aufgeteilt, zwei für Erwachsene und zwei für Kinder oder Gäste an jedem Ende des Hauses. In der Mitte werden Wohnzimmer und Küche zum natürlichen Treffpunkt.
Präzise Details und schmale Dachvorsprünge verleihen dem Prio 143 Industrial einen großartigen Charakter. Mit einer Formensprache, die an Künstlerateliers und Scheunen erinnert, passt es sowohl aufs Land als auch in die Stadt. Prio 143 ist nicht ohne Grund unser meistverkauftes Haus. Hier wird jeder Quadratmeter mit einem Grundriss genutzt, der sowohl für große als auch für kleine Familien mit Kindern geeignet ist. Die 4 Schlafzimmer des Hauses sind aufgeteilt, zwei für Erwachsene und zwei für Kinder oder Gäste an jedem Ende des Hauses. In der Mitte werden Wohnzimmer und Küche zum natürlichen Treffpunkt.
Mit Balken, weißen Knoten und einem einladenden Eingang spiegelt der Prio 141 Traditionell Sicherheit und schwedisches architektonisches Erbe wider. Prio 143 ist nicht ohne Grund unser meistverkauftes Haus. Hier wird jeder Quadratmeter sinnvoll genutzt, der sowohl für große als auch für kleine Familien mit Kindern geeignet ist. Die 4 Schlafzimmer des Hauses sind aufgeteilt, zwei für Erwachsene und zwei für Kinder oder Gäste an jedem Ende des Hauses. In der Mitte werden Wohnzimmer und Küche zum natürlichen Treffpunkt.
(C) 2023 ZUHAUS Schwedenbau GmbH Impressum / Datenschutz
