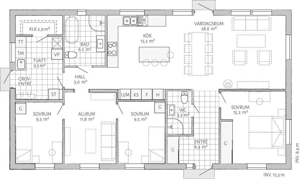
Eine kürzere Traufe und die stilvolle Fassade verleihen dem Prio 129 Modern einen eleganten Ausdruck, der sowohl im Grünen als auch im Wohngebiet gut zur Geltung kommt. Der Prio 129 ist perfekt für die kleinere Familie. Es ist auch wirklich gut für diejenigen unter Ihnen, die heute in einem großen Haus leben und davon träumen, weniger Räume zu reinigen, aber dennoch viel Platz für gesellschaftliche Veranstaltungen zu haben. Wenn Sie sich für ein Walmdach entscheiden, erhalten Wohnzimmer und Küche ein noch größeres Raumgefühl!
Präzise Details und viel Platz verleihen dem Prio 129 Industrial einen großartigen Charakter. Mit einer Formensprache, die an Künstlerateliers und Scheunen erinnert, passt es sowohl aufs Land als auch in die Stadt. Der Prio 129 ist perfekt für die kleinere Familie. Es ist auch wirklich gut für diejenigen unter Ihnen, die heute in einem großen Haus leben und davon träumen, weniger Räume zu reinigen, aber dennoch viel Platz für gesellschaftliche Veranstaltungen zu haben. Wenn Sie sich für ein Walmdach entscheiden, erhalten Wohnzimmer und Küche ein noch größeres Raumgefühl!
Ein einladender Eingang verleiht dem Prio 129 Traditional ein Gefühl von Sicherheit und schwedischem Architekturerbe. Der Prio 129 ist perfekt für die kleinere Familie. Es ist auch wirklich gut für diejenigen unter Ihnen, die heute in einem großen Haus leben und davon träumen, weniger Räume zu reinigen, aber dennoch viel Platz für gesellschaftliche Veranstaltungen zu haben. Wenn Sie sich für ein Walmdach entscheiden, erhalten Wohnzimmer und Küche ein noch größeres Raumgefühl!
(C) 2023 ZUHAUS Schwedenbau GmbH Impressum / Datenschutz
