... im eleganten Stil
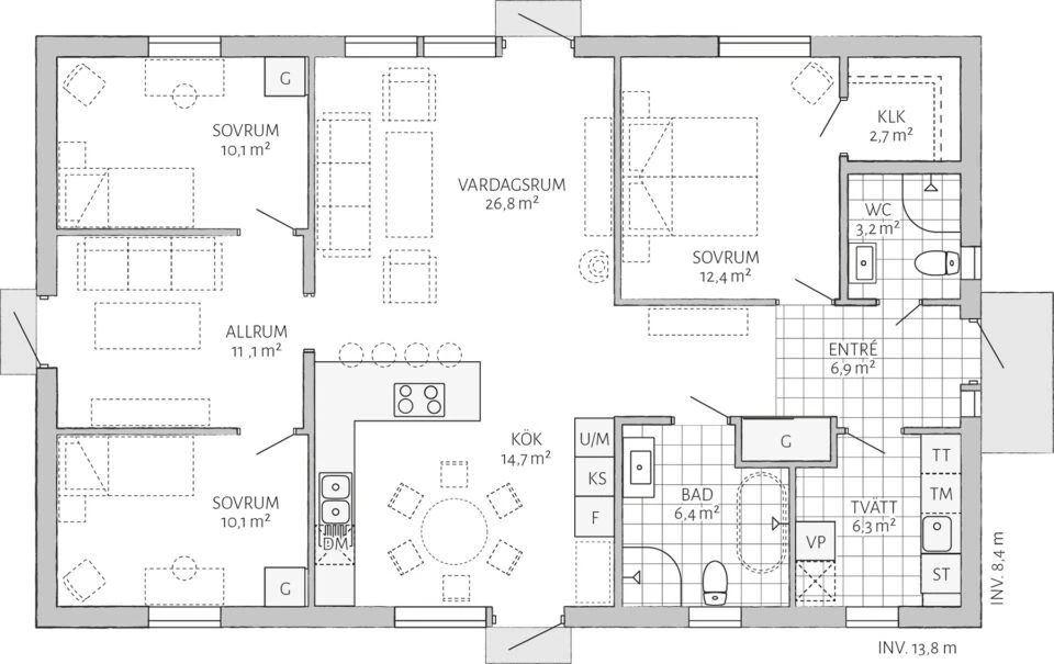
Prio 116 Modern hat einen angenehmen und einladenden Ausdruck, der in allen Umgebungen funktioniert. Hier gibt es viel Licht und eine etwas kürzere Traufe, was zu einem eleganten Gefühl beiträgt. Der Prio 116 ist der kleinste in der Prio-Serie, bietet aber auf kleiner Fläche den nötigen Platz und die nötigen Funktionen. Im Prio 116 werden Wohnzimmer und Küche zum natürlichen Mittelpunkt und Mittelpunkt des Hauses. Außerdem trennt es den Kinder- und Elternteil des Hauses auf natürliche Weise.
... mit stilvollem Charakter
Präzise Details und viel Platz verleihen dem Prio 116 Industrial einen großartigen Charakter. Mit einer Formensprache, die an Künstlerateliers und Scheunen erinnert, passt es sowohl aufs Land als auch in die Stadt. Der Prio 116 ist der kleinste in der Prio-Serie, bietet aber auf kleiner Fläche den nötigen Platz und die nötigen Funktionen. Hier werden Wohnzimmer und Küche zum natürlichen Mittelpunkt und Mittelpunkt des Hauses. Außerdem trennt es den Kinder- und Elternteil des Hauses auf natürliche Weise.
... im klassischen Stil
Mit handwerklicher Freude, Balken und weißen Ästen spiegelt Prio 116 Traditional Sicherheit und schwedisches Bauerbe wider. Der Prio 116 ist der kleinste in der Prio-Serie, bietet aber auf kleiner Fläche den nötigen Platz und die nötigen Funktionen. Hier werden Wohnzimmer und Küche zum natürlichen Mittelpunkt und Mittelpunkt des Hauses. Außerdem trennt es den Kinder- und Elternteil des Hauses auf natürliche Weise.
(C) 2023 ZUHAUS Schwedenbau GmbH Impressum / Datenschutz
