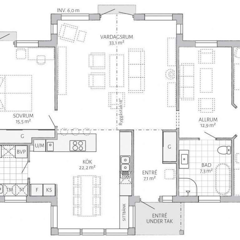
Betritt man dieses Haus begegnet man dem einfallenden Licht des geräumigen Wohnzimmers. Seine Kathedraldecke und seine enorme Fensterpartie bilden das Herz des Hauses. Die Küche bietet viel Platz und Arbeitsfläche für die Bewirtung zahlreicher Gäste. Der im Anschluss liegende Hauswirtschaftsraum ist großzügig gestaltet. Er ist mit einem Nebeneingang ausgestattet und führt Sie zu einem Ankleideraum. Vom Elternschlafzimmer, mit eigenem Duschbad, gelangt man direkt auf die Terrasse. Besonderst hervorzuheben ist der gut durchdachte separierte Kindertrakt mit großem Bad und Gemeinschaftsraum, bestens geeignet für den Empfang kleiner Gäste.
(C) 2023 ZUHAUS Schwedenbau GmbH Impressum / Datenschutz


