Kaxholmen ist ein modernes und stilvolles Haus mit einer anspruchsvollen Architektur im zeitlosen Design. Die bodentiefen Fenster mit Pultdachanschnitt unterstreichen den besonderen Anspruch des Planers. Auf fallend ist, wie die Pultdächer der drei Baukörper aufeinander treffen und durch klare Linienführung und Formensprache den Bauhausstil hervorragend repräsentieren.
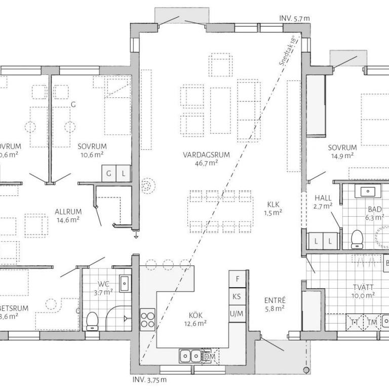
Ein gut durchdachter Entwurf für den anspruchsvollen Bauherren. Sechs Zimmer, zwei Bäder, eine Küche und der Hauswirtschaftraum verteilt auf 156 m².
(C) 2023 ZUHAUS Schwedenbau GmbH Impressum / Datenschutz


