Ein unkonventionelles Gebäude im Stil der in Schweden so beliebten Funkis Häuser. Die gegeneinander versetzten, auch in ihrer Höhe unterschiedlichen Baukörper unterstreichen den Anspruch des Besonderen dieser Stilrichtung. Das erste Gebäude im Funkis-Stil wurde in Stockholm von Nils Einar Eriksson (1899-1978) erbaut. Vergleichbar ist dieser Bau-Stil mit dem deutschen Bauhaus-Stil.
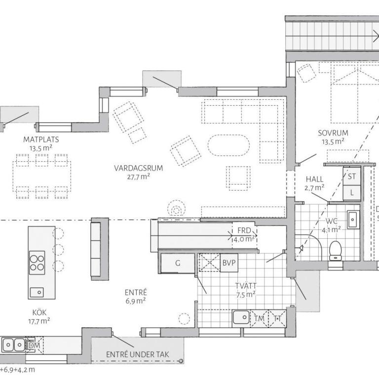
ERDGESCHOSS 108 m²
Die weitgehend offene Fläche wird durch das Spiel des Lichtes geprägt, das über die bodentiefen Fensterelemente in den Raum gelangt. Eine große Diele verbindet die Küche, das Wohn-, Esszimmer und den Hauswirtschaftsraum miteinander. Das abgelegene Elternschlafzimmer sorgt für erholsamen Schlaf und verfügt über ein eigenes Badezimmer sowie eine Ankleide. Ein zusätzliches Gäste-WC lässt sich problemlos planen.
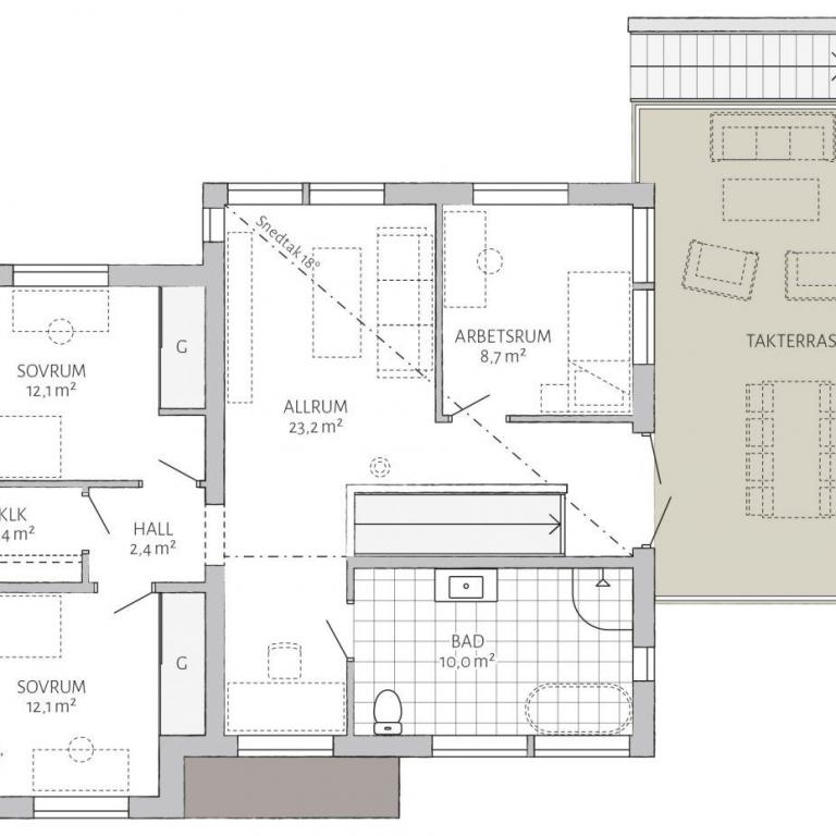
OBERGESCHOSS 80 m²
Das Gemeinschaftszimmer mit seinem hohen Schrägdach sorgt für ein außerordentliches Raumgefühl. Die angeschlossene Terrasse, die auch über eine Außentreppe erreicht werden kann, bestätigt dieses Gefühl von Größe und Einmaligkeit. Im Obergeschoss befinden sich außerdem zwei Schlafräume, ein Arbeitsraum und ein Badezimmer.
(C) 2023 ZUHAUS Schwedenbau GmbH Impressum / Datenschutz




