2 Vollgeschosse
6 Zimmer und Küche - 202 m²
Bei diesem Entwurf ist es gelungen die wesentlichen Merkmale des New England Style zu übernehmen. Die Frontansicht dieser prächtigen Villa wird bestimmt durch die symmetrisch angeordneten Fenster und durch die imposante Eckveranda, die im Kontrast zu der schlichten Holzfassade steht. 202 m² verteilen sich auf zwei Vollgeschosse.
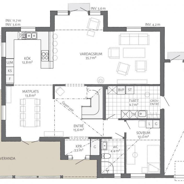
ERDGESCHOSS 109 m²
Der Eingangsbereich ist außerordentlich exklusiv geplant und erinnert an die Empfangshalle großer Villen. Der Nebeneingang zum Hauswirtschaftsraum führt durch die angebaute Garage. Das abgetrennte Zimmer im Anschluss zur WC/ Dusche verspricht freie Gestaltungsmöglichkeiten.
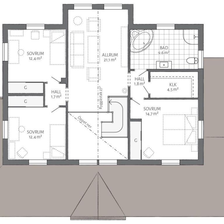
OBERGESCHOSS 93 m²
Der Blick schweift hinauf ins Obergeschoss bis hoch zur Kathedraldecke, die sich über die gesamte obere Etage erstreckt. Hier befinden sich drei Schlafzimmer mit eigenen begehbaren Kleiderschränken.
(C) 2023 ZUHAUS Schwedenbau GmbH Impressum / Datenschutz

 
 
 
 
 


 
     
     
     
    