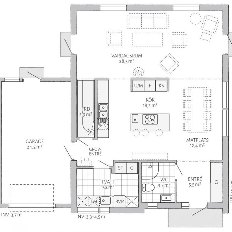
Dieses zweigeschossige Haus, das mit seiner Schlichtheit und Geradlinigkeit an Industriebauten erinnert, hat einen selbstsicheren Auftritt. Bei dieser Ausführung sticht das Äußere mit seinen waagerecht verlegten Holzpaneelen und schwarzen Fensterrahmen hervor. Die Garage ist direkt mit dem Haus verbunden, was in städtischen Situationen von heute, mit oft schmaleren Grundstücken, ideal ist.
Wenn Sie zur Haustür hereinkommen bietet sich Ihnen ein wundervoller Blick durch das gesamte Haus. Im Obergeschoss finden wir großzügige und praktische Schlafzimmer und ein einladendes, wundervolles Gemeinschaftszimmer, das die Schlafzimmer verbindet.
(C) 2023 ZUHAUS Schwedenbau GmbH Impressum / Datenschutz




