Dieses schöne, stilvolle Landschaftshaus ist von den Traditionen der südlichen schwedischen Provinzen geprägt. Weiß verputzt, mit markantem Dachfries unter dem Dachüberstand, und mit ausgewogen proportionierten Fenstern bekommt das Haus einen klaren, harmonischen Charakter. Die im Kontrast zum Putz graue Dekorfarbe, der Details, verstärkt den Ausdruck der Linienführung.
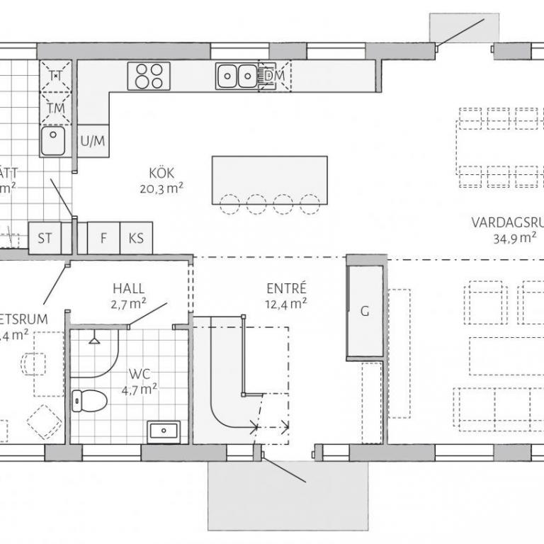
ERDGESCHOSS 95 m²
Die geräumige Eingangshalle verbindet nicht nur die Räume des Erdgeschosses, sondern ermöglicht über eine 1/4 gewendelte Treppe den Zugang zum Obergeschoss. Die Küche, modern eingerichtet mit einer Kochinsel, liegt zwischen Wohn- und Hauswirtschaftsraum. Im Wohnzimmer sorgen Fensterpartien in drei Himmelrichtungen für eine ausgewogene Belichtung des Raumes.
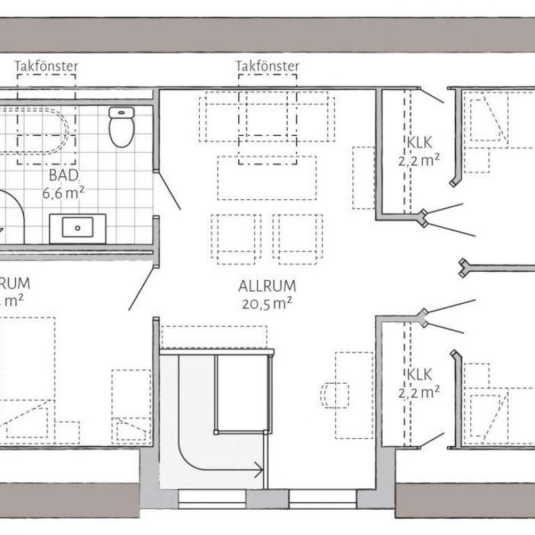
OBERGESCHOSS 72 m²
Der Gemeinschaftsraum trennt die Kinderschlafzimmer vom Elternschlafzimmer und sorgt so für Abgeschiedenheit. Das Vollbad bietet genug Raum für eine gemeinsame Nutzung. Durch zusätzliche Dachflächenfenster kann noch mehr Licht in die Räume gebracht werden.
(C) 2023 ZUHAUS Schwedenbau GmbH Impressum / Datenschutz




